VistaSlim Picture

Designed for Uninterrupted Views
Performance Framed in Glass
The Win-Gate VistaSlim series of picture windows offers an exceptional combination of performance, European-style operation, and aesthetic appeal. Usually paired with our top-selling product, VistaSlim tilt and turn, the VistaSlim series is an ideal choice for any architectural space.
Features
Performance
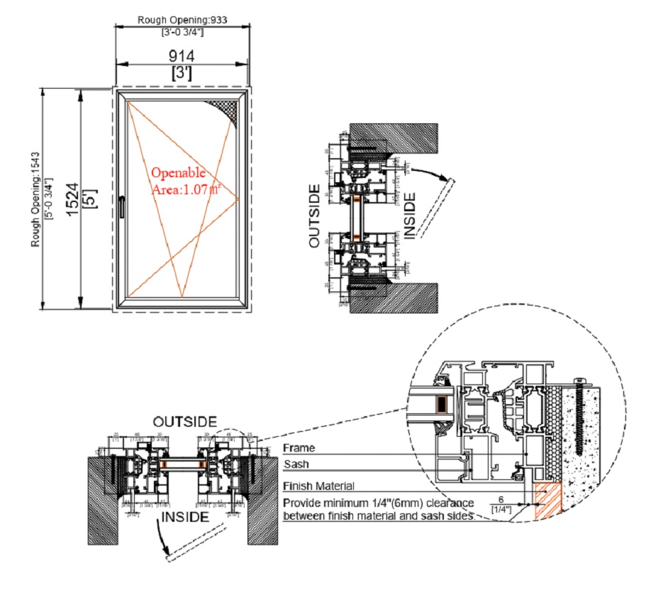
Model VistaSlim 80s Fixed
| Glazing Options: | Double-pane | Triple-pane | ||
|---|---|---|---|---|
| Energy Ratings: | U-Value | SHGC | U-Value | SHGC |
| Picture Window | 0.30 | 0.25 | 0.24 | 0.23 |
| Tilt & Turn Window | 0.31 | 0.22 | 0.27 | 0.21 |
CW-PG50-1250x1850mm (49.21×72.83 in) -Type DAW
DP: +2400/-2400 Pa (+50.13/-50.13 psf)
Water Test Pressure: 440Pa (9.19 psf)
Canadian Air Infiltration/Exfiltration: A3
Conforms to AAMA / WDMA / CSA 101/I.S.2/ A440-11 & CSA A440S1-17


Frame: Aluminum w/ Thermal Break, 6060-T66 Profile,
≥2.0mm Thickness, 3-1/8″ Jamb Depth
Finish: Powder Coating-20 Years Warranty
Glass: ◆Tempered Safety Glass
◆Ultra Clear Glass
◆Double-pane (1/4″ TG+1/2″ Air Space+1/4″ TG), Triple-pane Optional
◆Argon Fill
◆Double-silver LowE Coating
◆Warm-edge Spacer
Hardware: Belgium Brand-Sobinco, Concealed Hinges, Multi-point,Locking System
Weather Seals: Three layers of EPDM Weather Stripping
Screen Options: Fixed Removable Screen, Retractable Screen
Installation: New or replacement available
Functionality: Picture Window, Tilt & Turn Window, Tilt-in Window
Grids: No Grid. GBG, SDL or Custom Grilles Optional